Ontwerp civiele kunstwerken

3D-ontwerp van infrastructuurproject aan water met wegen, groen, gebouwen en aanlegsteiger met gele veerboot

Als u infrastructurele vooruitgang wilt boeken zijn civiele kunstwerken van groot belang. U stimuleert immers mobiliteit en overbrugt obstakels. 

Heeft u plannen om verouderde kunstwerken te vervangen? Of zijn er nieuwe kunstwerken vereist bij nieuwbouwprojecten? Wij voorzien u in een robuust en veilig ontwerp van de constructie. Wij leveren u een kunstwerk in natte of droge situatie die voldoet aan eisen, wensen en regelgeving.

  • Probleemanalyses en variantenstudies
  • Ontwerpen op niveau van concept, voorlopig, definitief en uitvoering
  • Sterkte en stabiliteitsberekeningen
  • Toetsingen en controles

Bij ons bent u ervan verzekerd dat de ontwerpberekeningen altijd aan de hand van het Bouwbesluit en Eurocode uitgevoerd worden. Uiteraard nemen we hierbij de aanvullende eisen uit de ROK of lokaal geldende richtlijnen mee.

Waarom kiezen voor Tetra Tech?

Voor het realiseren van een robuust en veilig ontwerp van de constructie is kennis, ervaring en capaciteit vereist. Door een mix van fris, jong talent en senioriteit met bewezen vakmanschap hebben we:

  • Een totaalpakket beschikbaar voor onderzoek en vervolgstappen van natte en droge kunstwerken.
  • De inspectiecapaciteit om kunstwerken tot op voldoende detailniveau te onderzoeken.
  • Een brede scope op dienstverlening: van het aanleveren van verbeterings- en versterkingsmogelijkheden tot volledig nieuwe ontwerpen.

Verder ondersteunen wij u graag bij onderstaande gerelateerde diensten:

  • Opstellen ontwerptekeningen en bestekken
  • Backoffice werkzaamheden
  • Funderings- en herberekeningen
  • Directievoering
  • Toezicht

Voorbeeldprojecten

3D-structuurmodel van brug met krachten- en verplaatsingsdata in analyseomgeving voor ontwerp en engineering

Vervangen monumentale boogbrug gemeente Gooise Meren

Tetra Tech is betrokken bij het versterken van een monumentale gemetselde boogbrug in de gemeente Gooise Meren. In een bouwteam werken wij samen om een optimale constructie te creëren. In dit project zijn diverse conditionerende onderzoeken uitgevoerd om de huidige situatie in beeld te krijgen, zodat de gekozen variant geoptimaliseerd kon worden. Denk hierbij aan sonderingen, funderingsonderzoek en materiaalonderzoek.

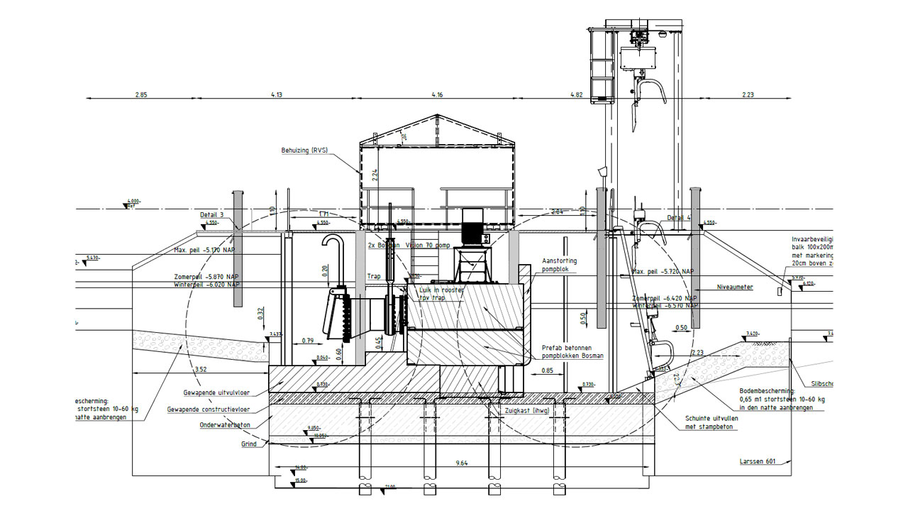
Technische tekening van civiel ontwerp met details zoals persleiding, zandbed, beluchting en betonconstructies

UO-berekeningen Gemaal gemeente Haarlemmermeer

In opdracht van een aannemer heeft Tetra Tech een gemaal doorgerekend voor de ontwikkeling van een uitvoeringsontwerp. Stabiliteits- en sterkteberekeningen zijn uitgevoerd van een tijdelijke bouwkuipsituatie tot de definitieve situatie. Staaltoetsingen, dimensionering van verbindingen, betonberekeningen stonden centraal.

Detailkaart van wegontwerp met rijstroken, voetpaden, groenstroken en aangrenzende bebouwing

Afmeervoorzieningen Veerstoep Bergambacht gemeente Krimpenerwaard

Het herinrichtingsplan van het gebied waar de veerpont van Bergstoep aanlegt, is door Tetra Tech vorm gegeven. Onderdeel van dit project was het dimensioneren van de aanmeervoorziening en de overnachtingsplaats. De stalen buispalen van deze voorzieningen zijn ontworpen voor de relatief slechte grondslag die volgde uit uitvoerig geotechnisch onderzoek.

Onze gerelateerde expertise

3D-puntenwolk van boogbrug met kleurindicatie voor hoogteverschillen, gebruikt voor analyse en herberekening

Herberekeningen civiele kunstwerken

nspectieteam voert visuele controle uit bij brugconstructie met duiker in water en toezichthouders op brug – inspectie van civiele kunstwerken in natte omgeving

Inspectie civiele kunstwerken

Inspecteur daalt via ladder af in mangat voor inspectie van besloten ruimte, met helm en beschermende kleding

Inspecties duikers, siphons, riolen en tanks

Materiaalonderzoek civiele kunstwerken

Inspecteur meet constructie in met total station op statief bij tunnelbouw, met zicht op betonwanden en achtergrondbebouwing

Monitoring en inmeten constructies

Medewerkers voeren grondonderzoek uit met boorinstallatie aan waterkant, met zicht op riet

Onderzoek fundering en grond

Contact

Tetra Tech hecht veel waarde aan de bescherming en het respecteren van uw privacy. We gebruiken uw persoonlijke gegevens uitsluitend voor het beheer van uw account en het leveren van de producten en diensten die u bij ons hebt aangevraagd. Van tijd tot tijd willen we graag contact met u opnemen over onze producten en diensten, evenals andere content die mogelijk interessant voor u is. Als u ermee instemt dat we contact met u opnemen voor dit doel, vink dan hieronder aan:
Door hieronder op 'Verzenden' te klikken, geeft u Tetra Tech toestemming om de hierboven verstrekte persoonsgegevens op te slaan en te verwerken om u de gevraagde inhoud te kunnen leveren.

Onze uitgelichte ontwerp civiele kunstwerken hoogtepunten

Luchtfoto van dijkversterking en herinrichting Salmsteke met rivier, natuur en versterkte waterkering in beeld

Dijkversterking en herinrichting Salmsteke

3D-puntenwolk van waterkering met brug en bedieningsgebouw, gebruikt bij onderzoek primaire waterkeringen Rijnland

Onderzoek primaire waterkeringen Hoogheemraadschap van Rijnland

Luchtfoto veerstoep Bergambacht met aanlegsteiger, parkeerterrein en heringerichte infrastructuur

Herinrichting veerstoep Bergambacht

Scroll to Top